室內設計.裝修|堅禾空間設計Just Home Design
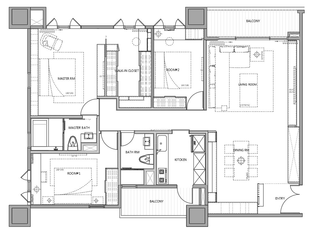
三房兩廳兩衛|37.8坪|新成屋|新北市 中和區
高貴氛圍 經典優雅
以大理石電視牆為焦點獨特設計元素為家居增添一份奢華的質感每每進入如同走進貴族的奢華殿堂電視牆延伸連結收納不僅呈現視覺藝術,更提供功能性完美地結合美感和實用性
屋裡的每個燈光照明扮演著至關重要的角色營造出溫暖而宜人的環境讓家處處迷人